The Global City là một khu đô thị phức hợp hiện đại do Masterise Homes phát triển, nằm ngay trung tâm thành phố Thủ Đức. Dự án có tổng diện tích 117,4 ha và được quy hoạch đồng bộ, bao gồm 193 căn biệt thự, nhà phố sân vườn, cùng với 40 tháp chung cư, cung cấp tổng cộng 13.200 căn hộ cao cấp và 80 căn penthouse sang trọng. Ngoài ra, cư dân tại The Global City còn có thể tận hưởng các tiện ích đẳng cấp như bể bơi tràn viền ngoài trời, khu thể thao đa năng, công viên kính vạn hoa và nhiều khu vực vui chơi giải trí hiện đại khác.
Tổng Quan Dự Án The Global City Thủ Đức
-
Tên dự án: The Global City
-
Vị trí: Đường Đỗ Xuân Hợp, phường An Phú, Quận 2, thành phố Thủ Đức
-
Chủ đầu tư: Masterise Homes
-
Tổng thầu xây dựng: An Phong Cons
-
Thiết kế kiến trúc: Foster and Partners (Anh)
-
Quy mô: 117,4 ha, gồm 2 phân khu chính
-
Phân khu nhà ở: 22 ha, gồm 193 căn biệt thự, nhà phố sân vườn và 40 tháp chung cư với 13.200 căn hộ cao cấp, 80 căn penthouse
-
Phân khu sân golf: 92 ha, gồm sân golf 18 lỗ, khu nghỉ dưỡng và khách sạn 400 phòng
-
-
Pháp lý: Giấy phép xây dựng số 155/GPXD cấp ngày 18/12/2020
-
Thời gian khởi công: 18/03/2021
-
Dự kiến hoàn thành: 21/12/2025
-
Hình thức sở hữu:
-
Người Việt Nam: Sở hữu lâu dài
-
Người nước ngoài: Sở hữu 50 năm
-

Với quy hoạch hiện đại, hệ thống tiện ích đẳng cấp và vị trí đắc địa, The Global City hứa hẹn sẽ trở thành biểu tượng đô thị mới tại thành phố Thủ Đức, mang đến không gian sống lý tưởng và cơ hội đầu tư hấp dẫn.
Vị Trí Chiến Lược Của Dự Án The Global City Thủ Đức
Dự án The Global City tọa lạc tại mặt đường Đỗ Xuân Hợp, phường An Phú, quận 2, thành phố Thủ Đức, TP. Hồ Chí Minh, nằm trong một khu vực trung tâm sôi động và phát triển nhanh chóng bậc nhất tại khu Đông Sài Gòn. Với vị trí đắc địa, dự án còn có tiềm năng gia tăng giá trị bất động sản trong tương lai nhờ vào hệ thống hạ tầng giao thông hoàn thiện và khả năng kết nối linh hoạt với các khu vực lân cận.
The Global City – Sài Gòn Bình An được đánh giá cao nhờ vào vị trí đặc biệt, khi có hai mặt tiền giáp với hai trục đường quan trọng của khu vực. Một trong những điểm mạnh lớn nhất của dự án là sự liền kề với cao tốc TP.HCM – Long Thành – Dầu Giây, tuyến giao thông huyết mạch kết nối trực tiếp TP. Hồ Chí Minh với các tỉnh miền Tây Nam Bộ, Đông Nam Bộ và Tây Nguyên. Chính nhờ đó, cư dân tại đây có thể dễ dàng di chuyển đến các khu vực trọng điểm như Biên Hòa, Bình Dương, Dĩ An, Long Thành, Nhơn Trạch,… một cách nhanh chóng và thuận tiện.

Ranh Giới Dự Án The Global City Đỗ Xuân Hợp
Phía Đông của The Global City giáp với tuyến đường Đỗ Xuân Hợp, một trong những tuyến giao thông quan trọng kết nối khu vực An Phú với các đô thị phát triển khác trong thành phố Thủ Đức. Đây là tuyến đường có mật độ giao thông cao, giúp việc di chuyển đến các khu vực trung tâm trở nên nhanh chóng và thuận tiện.
Phía Tây giáp với khu đô thị Sài Gòn Sports City, một trong những khu phức hợp thể thao và nhà ở hiện đại hàng đầu khu Đông Sài Gòn. Với quy hoạch đồng bộ, khu vực này không chỉ mang đến không gian sống chất lượng mà còn tạo điều kiện cho cư dân The Global City tiếp cận các tiện ích thể thao, giải trí và thương mại đẳng cấp.
Phía Nam giáp với tuyến đường song hành cao tốc TP.HCM – Long Thành – Dầu Giây, đồng thời tiếp giáp với khu tái định cư có quy mô 15ha và dòng sông Sài Gòn. Nhờ vị trí ven sông, khu đô thị tận dụng được lợi thế về không gian sống thoáng đãng, mát mẻ, lý tưởng cho những ai yêu thích môi trường sống gần gũi với thiên nhiên.
Phía Bắc giáp với sông Rạch Chiếc, tạo cơ hội lý tưởng để phát triển không gian xanh và hệ thống công viên ven sông. Đây không chỉ là yếu tố giúp cải thiện chất lượng không khí, mang đến cuộc sống trong lành cho cư dân mà còn tạo lợi thế phong thủy vững chắc cho dự án.
The Global City không chỉ có vị trí thuận tiện về giao thông mà còn sở hữu địa thế phong thủy tuyệt vời, hội tụ đầy đủ các yếu tố “Nhất cận thị, Nhị cận giang, Tam cận lộ”. Dự án vừa nằm gần trung tâm kinh tế, tài chính, thương mại, lại được bao bọc bởi hệ thống sông nước tự nhiên, mang đến không gian sống hài hòa, cân bằng giữa thiên nhiên và đô thị. Không chỉ giúp điều hòa không khí, giảm nhiệt độ môi trường, các dòng sông xung quanh còn tạo ra sự thịnh vượng và phát triển bền vững, phù hợp với cả nhu cầu an cư lẫn

Với những lợi thế vượt trội về vị trí, The Global City không chỉ là một lựa chọn lý tưởng để an cư mà còn mang đến nhiều cơ hội đầu tư hấp dẫn trong tương lai. Dự án hứa hẹn sẽ trở thành một trong những khu đô thị kiểu mẫu tại thành phố Thủ Đức, đóng góp vào việc định hình diện mạo mới cho khu Đông Sài Gòn và trở thành tâm điểm phát triển của toàn khu vực.
Tiện Ích Dự Án The Global City Thủ Đức
The Global City quận 2 không chỉ đơn thuần là một khu đô thị cao cấp mà còn được định hướng trở thành một “Downtown City” mang tính biểu tượng, thiết lập chuẩn mực mới cho phong cách sống thượng lưu tại khu vực Đông Nam Á. Được xây dựng theo xu hướng “New Urbanism – Chủ nghĩa Đại Đô Thị mới”, dự án mang đến không gian sống hiện đại, đẳng cấp với chuỗi tiện ích hàng đầu đạt chuẩn quốc tế, đáp ứng tối đa nhu cầu sống, giải trí và nghỉ dưỡng cho cư dân.
Là một trong những nhà phát triển bất động sản hàng đầu tại Việt Nam, Masterise Homes không ngừng đổi mới và ứng dụng công nghệ hiện đại vào thiết kế và quy hoạch, tạo ra một khu đô thị đẳng cấp ngang tầm với các thành phố lớn trên thế giới. Với tầm nhìn dài hạn, The Global City không chỉ là một khu căn hộ cao cấp tại trung tâm Sài Gòn mà còn hướng tới mục tiêu trở thành một thành phố toàn cầu thu nhỏ, nơi hội tụ những giá trị sống vượt trội.
Một trong những điểm nhấn nổi bật của dự án là hệ thống tiện ích nội khu đa dạng, được quy hoạch khoa học nhằm mang đến cuộc sống tiện nghi, thoải mái cho cư dân. Ngay trong khuôn viên dự án, các tiện ích đẳng cấp đã được bố trí hợp lý, giúp cư dân tận hưởng trọn vẹn những giây phút thư giãn ngay tại nơi mình sinh sống mà không cần phải di chuyển xa.
Không gian sống tại The Global City không chỉ mang lại sự tiện nghi mà còn giống như một khu resort nghỉ dưỡng cao cấp giữa lòng đô thị. Sau những ngày làm việc căng thẳng, cư dân có thể tận hưởng không khí trong lành, tham gia các hoạt động thể thao, thư giãn bên hồ bơi, hoặc đơn giản là dạo bước trong các khu vườn xanh mát để tìm lại sự cân bằng trong cuộc sống.



Hệ Thống Tiện Ích Đẳng Cấp Tại The Global City Quận 2, Thủ Đức
-
Công viên cây xanh rộng lớn cùng hệ thống đường dạo bộ nội khu, mang đến không gian thư giãn lý tưởng cho cư dân.
-
Hồ cảnh quan được thiết kế hài hòa với cảnh quan thiên nhiên, giúp điều hòa không khí và tạo điểm nhấn cho toàn khu đô thị.
-
Phòng khách sạn tiêu chuẩn 6 sao mang đến trải nghiệm nghỉ dưỡng sang trọng, phục vụ những nhu cầu đẳng cấp nhất.
-
Bến du thuyền hạng sang, biểu tượng của phong cách sống thượng lưu, giúp cư dân có những trải nghiệm giải trí đẳng cấp ngay tại nơi mình sinh sống.
-
Vườn nướng BBQ ngoài trời, nơi các gia đình có thể tổ chức những buổi gặp gỡ, sum họp và tận hưởng không gian ấm cúng bên nhau.
-
Hệ thống quán cà phê ngoài trời được thiết kế theo phong cách hiện đại, là điểm đến lý tưởng để thư giãn, gặp gỡ bạn bè hoặc làm việc.
-
Khu vực phòng tập thể dục – thể thao hiện đại với trang thiết bị tiên tiến, bao gồm cả không gian luyện tập trong nhà và ngoài trời.
-
Trung tâm thương mại hạng A quy tụ các thương hiệu nổi tiếng trong nước và quốc tế, đáp ứng nhu cầu mua sắm, giải trí và ẩm thực của cư dân.
-
Hệ thống năng lượng mặt trời được tích hợp trong toàn khu đô thị, hướng đến sự phát triển bền vững và thân thiện với môi trường.
-
Chuỗi hồ bơi rộng lớn mang phong cách resort, tạo ra không gian thư giãn và vui chơi hoàn hảo cho mọi lứa tuổi.
-
Hệ thống hồ bơi vô cực trên khu căn hộ cao tầng, mang đến tầm nhìn tuyệt đẹp về thành phố và không gian thiên nhiên xung quanh.
-
Hệ thống công viên chủ đề được bố trí khắp các khu nhà ở thấp tầng, tạo nên môi trường sống gần gũi với thiên nhiên và đầy sáng tạo.
-
Hệ thống trường học quốc tế ngay trong khu đô thị, giúp cư dân dễ dàng tiếp cận nền giáo dục chất lượng cao mà không cần di chuyển xa.
-
Trung tâm chăm sóc sức khỏe tiêu chuẩn quốc tế, cung cấp các dịch vụ y tế hiện đại và toàn diện.
-
Club house đa năng là không gian lý tưởng để tổ chức các sự kiện cộng đồng, hội họp và giải trí.
-
Dòng sông xanh uốn lượn quanh các khu nhà ở cao tầng, tạo nên không gian sống hài hòa với thiên nhiên.
-
Cung đường chạy bộ ven sông kết hợp khu chèo thuyền Kayak, mang đến trải nghiệm vận động ngoài trời thú vị, giúp cư dân duy trì lối sống lành mạnh.

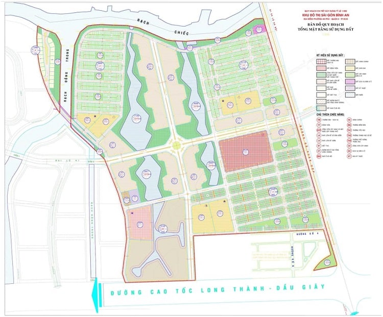
Mặt Bằng Dự Án The Global City Thủ Đức
Dự án The Global City Quận 2 Thủ Đức được quy hoạch trên diện tích 117,4 ha ngay trung tâm thành phố, sở hữu vị trí chiến lược tại khu Đông Sài Gòn. Đây là một khu đô thị phức hợp đạt chuẩn quốc tế, kết hợp giữa nhà ở cao cấp, thương mại, giáo dục, y tế và các tiện ích công cộng, tạo nên một môi trường sống hiện đại, đa chức năng và bền vững.
Với quy mô lớn và thiết kế tiên tiến, The Global City là một trong những dự án bất động sản có quy hoạch đồng bộ và bài bản nhất hiện nay. Khu đô thị bao gồm 20 block căn hộ cao tầng với hơn 10.000 căn hộ sang trọng, cùng với hệ thống biệt thự và nhà phố thương mại thấp tầng, mang đến sự đa dạng lựa chọn cho cư dân và nhà đầu tư.
Điểm đặc biệt, dự án là khu đô thị phức hợp đầu tiên tại Việt Nam được quy hoạch và thiết kế bởi Foster + Partners – công ty kiến trúc hàng đầu thế giới đến từ Anh Quốc. Với sự kết hợp giữa kiến trúc hiện đại và không gian xanh rộng lớn, The Global City không chỉ mang lại một khu đô thị đáng sống mà còn trở thành biểu tượng mới của khu vực Đông Nam Á.
Với tầm nhìn dài hạn, Masterise Homes đặt mục tiêu phát triển The Global City thành một trung tâm kinh tế, thương mại, văn hóa và giải trí mang đẳng cấp quốc tế. Đây không chỉ là nơi an cư lý tưởng mà còn là điểm đến hấp dẫn cho các hoạt động mua sắm, làm việc và tận hưởng cuộc sống đẳng cấp.

Quy Hoạch Diện Tích Các Khu Chức Năng Trong Dự Án The Global City An Phú
Dự án được phân chia rõ ràng thành các khu chức năng với từng diện tích cụ thể, đảm bảo sự hài hòa giữa không gian sống và tiện ích công cộng.
-
Khu nhà ở:
-
Khu thấp tầng: 23,1 ha, bao gồm nhà phố thương mại, biệt thự và các khu nhà liên kế sân vườn.
-
Khu cao tầng: 7,7 ha, bao gồm hệ thống chung cư cao cấp với 20 block căn hộ hiện đại.
-
Khu nhà ở xã hội: 2,4 ha, cung cấp các căn hộ dành riêng cho phân khúc nhà ở xã hội, đáp ứng nhu cầu của đa dạng khách hàng.
-
-
Khu tiện ích công cộng:
-
Công viên cây xanh và mặt nước: 21,7 ha, mang đến không gian xanh rộng lớn, giúp cư dân có môi trường sống trong lành, thư thái.
-
Bệnh viện: 2 ha, với hệ thống y tế hiện đại, phục vụ nhu cầu chăm sóc sức khỏe của cư dân.
-
Khu thương mại – dịch vụ: 4,1 ha, quy tụ các trung tâm mua sắm, nhà hàng, khu vui chơi giải trí, tạo nên khu vực sầm uất và tiện nghi.
-
Hệ thống giáo dục: 4,8 ha, bao gồm các trường học quốc tế, trường mầm non và trung tâm đào tạo, mang đến môi trường giáo dục chất lượng cao ngay trong khu đô thị.
-
Nhờ quy hoạch bài bản và diện tích phân bổ hợp lý, The Global City không chỉ đảm bảo một không gian sống chất lượng cao mà còn xây dựng một cộng đồng văn minh, hiện đại. Với hệ thống hạ tầng đồng bộ, dự án hứa hẹn sẽ trở thành trung tâm đô thị mới của thành phố Thủ Đức, mở ra tiềm năng phát triển mạnh mẽ trong tương lai.
Các Loại Hình Sản Phẩm Tại The Global City
Dự án The Global City An Phú mang đến nhiều lựa chọn sản phẩm đa dạng, bao gồm nhà phố, biệt thự và căn hộ cao tầng, đáp ứng nhu cầu của nhiều đối tượng khách hàng, từ nhà đầu tư đến người mua để ở. Mỗi loại hình sản phẩm tại đây đều được thiết kế hiện đại, tối ưu công năng sử dụng và đảm bảo tính thẩm mỹ cao.
Các căn shophouse tại dự án có diện tích từ 85m² – 120m², thiết kế 1 trệt 3 lầu kèm mái, trang bị thang máy riêng, phù hợp cho cả mục đích kinh doanh và an cư. Ngoài ra, nhà phố thương mại có diện tích từ 120m² – 220m², mang lại không gian lý tưởng cho các mô hình kinh doanh phát triển tại khu vực sầm uất bậc nhất Thủ Đức.
Dự án cũng cung cấp hệ thống căn hộ cao cấp với nhiều diện tích linh hoạt, từ căn hộ 1 phòng ngủ có diện tích 46m² đến căn hộ 4 phòng ngủ rộng 142m². Tất cả các căn hộ đều được thiết kế theo phong cách không gian mở, tận dụng tối đa ánh sáng tự nhiên và gió trời, mang đến một môi trường sống trong lành và gần gũi với thiên nhiên. Trong bối cảnh ngày càng nhiều gia đình tìm kiếm không gian sống kết nối với thiên nhiên, đây chính là một trong những điểm cộng lớn của dự án.
Shophouse The Global City
Shophouse The Global City Thủ Đức được quy hoạch tại các tuyến phố đắc địa trong khu đô thị, có khả năng kết nối trực tiếp với trung tâm thương mại, các khu vực kinh doanh và giải trí sôi động. Dòng sản phẩm này được phát triển theo tiêu chuẩn quốc tế, mang lại giá trị thương mại vượt trội nhờ vào vị trí chiến lược và thiết kế linh hoạt.
Các căn shophouse sẽ được bàn giao hoàn thiện phần ngoại thất và tầng trệt, trong khi phần bên trong sẽ được giao thô để chủ sở hữu có thể tùy chỉnh theo nhu cầu sử dụng. Mỗi căn shophouse có kết cấu 1 trệt, 3 lầu và 1 mái, với khoảng lùi trước và sau lần lượt là 2m, giúp tối ưu hóa không gian và tạo sự thông thoáng.
Thông số thiết kế shophouse:
-
Diện tích đất: 85m² – 95m² – 120m²
-
Chiều ngang tiêu chuẩn: 5m
-
Kết cấu: 1 trệt + 3 lầu + mái

Xem thêm Dự án: Sunshine Capital Tây Thăng Long
Với sự hợp tác thiết kế cùng Foster + Partners – công ty kiến trúc danh tiếng đến từ Anh Quốc, khu nhà phố thương mại The Global City được xây dựng theo phong cách hiện đại, đồng thời vẫn giữ được những nét đặc trưng của kiến trúc đô thị Việt Nam. Không chỉ là nơi an cư, đây còn là không gian lý tưởng cho các hoạt động kinh doanh, mua sắm và giải trí, mở ra cơ hội đầu tư sinh lời bền vững.
Nhà Phố The Global City
Mỗi căn nhà phố tại The Global City Quận Thủ Đức đều được đầu tư kỹ lưỡng với phong cách kiến trúc sang trọng và hiện đại. Các kiến trúc sư đã khéo léo kết hợp giữa yếu tố thẩm mỹ và công năng, tạo nên không gian sống tinh tế, đồng thời khẳng định vị thế của gia chủ.
Diện tích các căn nhà phố được thiết kế đa dạng, đảm bảo sự hài hòa trong tổng thể quy hoạch khu đô thị. Gam màu trắng chủ đạo mang lại vẻ ngoài thanh lịch và sang trọng, đồng thời giúp không gian luôn thông thoáng và tràn ngập ánh sáng tự nhiên. Với thiết kế thông minh, mỗi căn nhà phố tại The Global City không chỉ là nơi an cư lý tưởng mà còn mở ra cơ hội đầu tư kinh doanh hấp dẫn.
Căn Hộ The Global City Quận 2
Căn hộ Masteri The Global City Thủ Đức được thiết kế thông minh, tối ưu hóa không gian sống để mang đến trải nghiệm tiện nghi và hiện đại cho cư dân. Điểm nổi bật của các căn hộ tại đây chính là thiết kế mở, giúp gia tăng sự kết nối giữa không gian bên trong và thiên nhiên bên ngoài.
Mỗi căn hộ đều được trang bị ban công kính rộng lớn, mang lại tầm nhìn thoáng đãng và tối ưu hóa ánh sáng tự nhiên. Các phòng ngủ được thiết kế với cửa kính chạm trần và sát sàn, tạo cảm giác không gian rộng rãi và sáng sủa. Đặc biệt, khu vực phòng khách, bếp và bàn ăn được tích hợp trong một không gian chung, giúp không gian luôn thông thoáng ngay cả với những căn hộ có diện tích không quá lớn.
Bên cạnh đó, các tòa tháp căn hộ tại The Global City Thủ Đức được bố trí với khoảng cách hợp lý, giúp mỗi tòa nhà có diện tích tiếp xúc lớn với không gian bên ngoài. Nhờ vậy, cư dân có thể tận hưởng một môi trường sống gần gũi với thiên nhiên, với ánh sáng tự nhiên và gió trời luôn tràn ngập trong từng góc nhỏ của căn hộ. Đây chính là điểm khác biệt mà ít dự án bất động sản nội đô nào có thể sánh kịp.

ác Loại Diện Tích Căn Hộ Tại The Global City Thủ Đức
Dự án mang đến nhiều lựa chọn diện tích đa dạng, phù hợp với nhu cầu của nhiều đối tượng khách hàng:
-
Căn hộ 1 phòng ngủ: 46 – 51m²
-
Căn hộ 2 phòng ngủ, 1 WC: 60 – 68m²
-
Căn hộ 2 phòng ngủ, 2 WC: 70 – 72m²
-
Căn hộ 3 phòng ngủ: 82 – 90m²
-
Căn hộ Duplex: 92 – 142m²
Với thiết kế hiện đại, không gian thoáng đãng cùng hệ thống tiện ích đẳng cấp, căn hộ tại The Global City không chỉ mang đến chất lượng sống lý tưởng mà còn là kênh đầu tư tiềm năng trong tương lai.
Giá Bán Và Tiến Độ Thanh Toán The Global City Thủ Đức
Dự án The Global City Thủ Đức cung cấp nhiều lựa chọn sản phẩm từ căn hộ, nhà phố đến biệt thự, đáp ứng nhu cầu an cư và đầu tư của nhiều khách hàng. Giá bán và tiến độ thanh toán của từng loại sản phẩm sẽ thay đổi tùy vào thời điểm mở bán, các chính sách ưu đãi và loại hình bất động sản mà khách hàng quan tâm.
Giá Bán The Global City Thủ Đức
-
Căn hộ The Global City Thủ Đức: Vui lòng liên hệ để nhận thông tin chi tiết.
-
Nhà phố The Global City Thủ Đức: Vui lòng liên hệ để được tư vấn cụ thể.
-
Biệt thự The Global City Thủ Đức: Thông tin giá bán sẽ được cập nhật theo từng giai đoạn.
Tiến Độ Thanh Toán The Global City
Chủ đầu tư Masterise Homes đưa ra chính sách thanh toán linh hoạt để hỗ trợ tối đa khách hàng. Cụ thể, khách hàng có thể chọn nhiều phương án thanh toán phù hợp với khả năng tài chính cá nhân, bao gồm phương thức thanh toán theo tiến độ hoặc thanh toán nhanh với mức chiết khấu hấp dẫn. Để biết thêm thông tin chi tiết về giá bán, chính sách ưu đãi và tiến độ thanh toán mới nhất, vui lòng liên hệ trực tiếp để được tư vấn cụ thể.

